Woonoppervlakte
Circa 129 m²
Perceeloppervlakte
Circa 131 m²
Bouwjaar
Gebouwd in 2008
Aantal kamers
6 kamers (5 slaapkamers)

Elmore Jamesstraat 5

4337 PJ, Middelburg (Zeeland)

Eén van de bekendere nummers van Elmore James is "make my dream come true". Als u op zoek bent naar een onderhoudsvriendelijke en ruime woning dan is die titel zonder meer van toepassing op deze woning.

Verrassend ruime tussenwoning, opgeleverd in 2010 en (zelfs zonder zonnepanelen) voorzien van een A label.
Ruim betekent hier bijna 130 m2 woonoppervlak en maar liefst 5 slaapkamers. Dat gecombineerd met een 10 meter diepe tuin met een schuur en een vrij achterom. Completer wordt het niet.

Woonpark Mortiere is een nieuwe, ruime woonwijk aan de zuidrand van Middelburg. Een wijk met een heel eigen karakter. Het is dé plaats in Zeeland waar architectuur uit de jaren dertig fraai wordt gecombineerd met een Zeeuwse sfeer; natuurlijk mét de kwaliteiten van vandaag. Een fraai glooiende golfbaan omsluit de wijk.

Indeling:
Begane grond: entree met hal, meterkast en toiletruimte met wandcloset en fonteintje. Tuingerichte woonkamer met een brede schuifpui en een open keuken.

Eerste verdieping: overloop met toegang tot drie slaapkamers en een moderne badkamer met een comfortabele inloopdouche en een fraai wastafelmeubel.

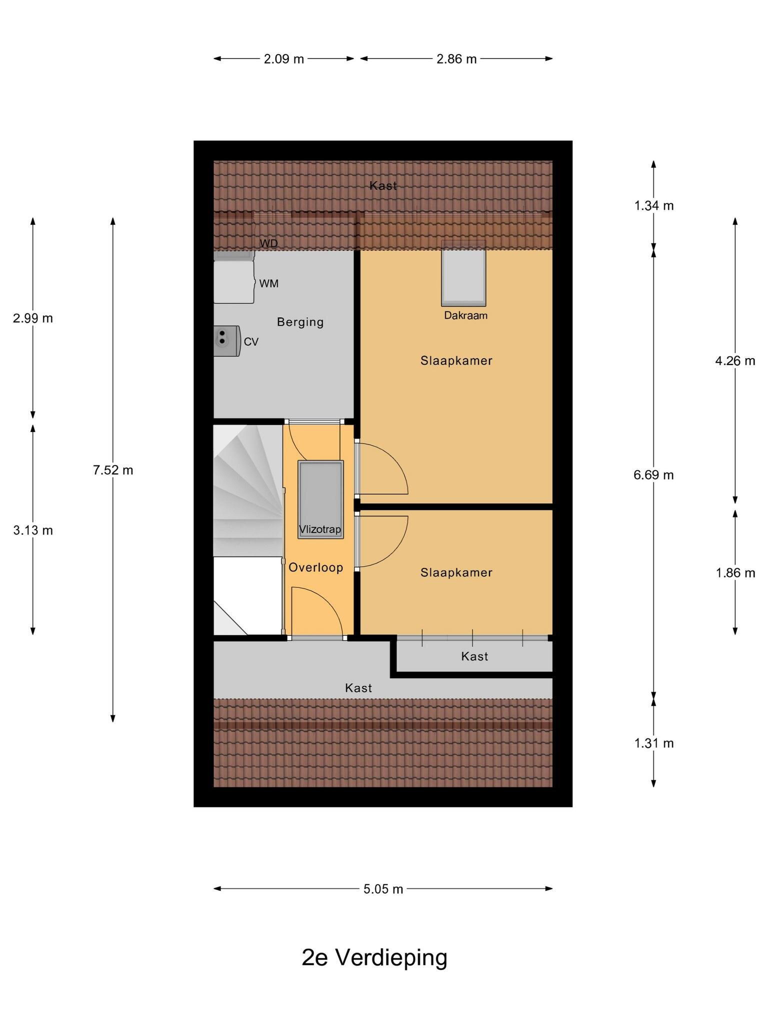
Tweede verdieping: in 2021 zijn hier twee slaapkamers gecreëerd waarvan één met een vaste kast. Tevens tref je hier de technische ruimte waar ook de wasmachineaansluiting is.

Derde verdieping: vlieringruimte, bereikbaar via een vlizotrap, bevloerd en met ruim 2 meter onder de nok.

Niet voor niets heeft de woning een A label dus de energiekosten zijn prima te beheersen. De woning heeft een cv ketel met een hybride warmtepomp gekoppeld. Uitstekend geïsoleerd en hoogwaardige beglazing. Vloerverwarming is hoofdverwarming.

De gehele begane grond is voorzien van prachtige, keramische vloertegels in een stijlvolle tint wat uitstekend past bij de fraaie keukeninrichting, die vanzelfsprekend is uitgevoerd met hoogwaardige, ingebouwde apparatuur.

Heerlijk zonnige achtertuin, eveneens onderhoudsvriendelijk aangelegd.

Benieuwd naar deze woning? Bel voor een bezichtigingsafspraak. Verwachte oplevering: vierde kwartaal 2025. Voor meer informatie verwijzen wij u graag naar onze website. Hier vindt u een uitgebreide presentatie van deze woning. Voor het plannen van een bezichtiging neemt u contact op met Bert Bimmel Makelaardij (0118-414014) Wij geven u graag een rondleiding in deze woning.

Plattegronden

Overdracht

Vraagprijs
€ 409.000 k.k.
Status
Verkocht
Aanvaarding
In overleg

Bouw

Object type
Eengezinswoning, tussenwoning
Soort bouw
Bestaande bouw
Bouwjaar
2008
Soort dak
Zadeldak bedekt met pannen

Oppervlakte en inhoud

Woonoppervlakte
129 m²
Perceeloppervlakte
131 m²
Inhoud
479 m³
Overige inpandige ruimte
7 m²
Externe bergruimte
6 m²

Indeling

Aantal kamers
6 kamers (5 slaapkamers)
Aantal badkamers
1 badkamer
Badkamervoorzieningen
Toilet, wastafel, inloopdouche
Aantal woonlagen
4 woonlagen
Voorzieningen
Mechanische ventilatie, tv-kabel, schuifpui, dakraam, glasvezel kabel

Energie

Energielabel
A
Energielabel registratie
19-05-2025
Isolatie
Volledig geïsoleerd, hr glas
Verwarming
Cv-ketel
Warm water
Cv-ketel
Cv ketel
Daalderop combinair combiketel gas gestookt uit 2010 (eigendom)

Buitenruimte

Tuin
Achtertuin, voortuin
Afmetingen achtertuin
50 m² (9 meter diep en 5.5 meter breed)
ligging tuin
Gelegen op het noordwesten en bereikbaar via achterom

Bergruimte

Schuur / berging
Vrijstaande houten berging
Voorzieningen
Voorzien van elektra

Garage

Soort garage
Geen garage

Parkeergelegenheid

Soort parkeergelegenheid
Openbaar parkeren

Energieverbruik in Middelburg

Energielabel deze woning

Energielabel A

Publicatie energielabel: 19-05-2025

Stroomverbruik per jaar

2330 kWh

(Gemiddelde tussenwoning in Middelburg)

Gasverbruik per jaar

1070 m³

(Gemiddelde tussenwoning in Middelburg)

* Cijfers zijn afkomstig van het CBS en bedoeld als indicatie en kunnen verschillen voor deze woning

Indicatie hypotheeklasten

Eigen inleg:
Spaargeld / overwaarde

Rente:
Laagste 10-jaars rente

Laagste 10-jaars rente

2,76% - Centraal Beheer Groen... - NHG


2,98% - Centraal Beheer Groen... - 80%

Laagste 20-jaars rente

3,19% - Centraal Beheer Groen... - NHG


3,31% - Centraal Beheer Groen... - 80%

Laagste 30-jaars rente

3,34% - Centraal Beheer Groen... - NHG


3,47% - Centraal Beheer Groen... - 80%


Hypotheek:

Bruto maandlasten: € 0 p/m

Netto maandlasten: € 0 p/m

Hoe berekenen we dit?

Het rentepercentage is gebaseerd op de laagste 10-jaars vaste rente voor één hypotheekdeel. De vermelde rente (2.98% zonder NHG) is gecontroleerd op 01-09-2025. Deze berekening is gebaseerd op een annuïteitenhypotheek die volledig wordt afgelost, waarbij de maandlasten gedurende de gehele looptijd gelijk blijven. De werkelijke rente en netto maandlasten kunnen variëren, afhankelijk van uw persoonlijke situatie en de hypotheekverstrekker. Raadpleeg een financieel adviseur voor een nauwkeurige berekening en advies. Aan deze berekening kunnen geen rechten worden ontleend; het dient enkel als indicatie.

Documentatie

Zonnegrenzen bekijken

Op de kaart

Inwoners in Middelburg

Cijfers voor postcodegebied 4337

Totaal aantal inwoners
8800 inwoners
Mannen
50%
Vrouwen
50%

Inwoners in Middelburg

Cijfers voor postcodegebied 4337

tot 15 jaar
19%
15 tot 25 jaar
13%
25 tot 35 jaar
26%
45 tot 65 jaar
26%
65 en ouder
16%

Huishoudens in Middelburg

Cijfers voor postcodegebied 4337

Eenpersoons zonder kinderen
36%
Meerpersoons zonder kinderen
25%
Huishoudens zonder kinderen
61%

Huishoudens in Middelburg

Cijfers voor postcodegebied 4337

Huishoudens met één kind
11%
Huishoudens met meerdere kinderen
28%
Huishoudens met kinderen
39%

Woningen in Middelburg

Cijfers voor postcodegebied 4337

Woningen voor 1945
1%
Woningen tussen 1945 en 1965
1%
Woningen tussen 1965 en 1975
37%
Woningen tussen 1975 en 1985
35%
Woningen tussen 1985 en 1995
4%

Woningen in Middelburg

Cijfers voor postcodegebied 4337

Woningen tussen 1995 en 2005
4%
Woningen tussen 2005 en 2015
15%
Woningen na 2015
5%
Huurwoningen
50%
Koopwoningen
50%

Overige in Middelburg

Cijfers voor postcodegebied 4337

Gemiddelde WOZ waarde
€ 175.000,-
Personen onder de 65 met uitkering
11%

Overige in Middelburg

Cijfers voor postcodegebied 4337

Adressen per km²
1836
Stedelijkheid (schaal 1 op 5)
80%
Postcode kaart 4337 Gemeente kaart middelburg

Korte feiten over Middelburg

Middelburg is een plaats in de Nederlandse provincie Zeeland, de hoofdplaats van de gelijknamige gemeente en hoofdstad van de provincie. De plaats ligt op het voormalige eiland Walcheren. De stad Middelburg telde op 1 januari 2021 42.190 inwoners. De gemeente telt 49.214 (31 januari 2022, bron: CBS) en 1016 inwoners per km². Middelburg is het beginpunt van de N57 en ligt aan de A58 en de spoorlijn Roosendaal - Vlissingen. De stad wordt doorsneden door het Kanaal door Walcheren. Middelburg is met ruim 42.000 inwoners de kleinste provinciehoofdstad.

Indien u vragen heeft of u wilt een bezichtiging inplannen, dan kunt u gebruik maken van het formulier hiernaast. Er zal daarna op korte termijn contact met u worden opgenomen.

Badhuisstraat 16

4381 LS, Vlissingen

0118 - 414 014 makelaar@bertbimmel.nl www.bertbimmel.nl

Over Bert Bimmel Makelaardij

Ons kantoor is actief op de vastgoedmarkt sinds 1990, toen Bert Bimmel een bestaand makelaarskantoor overnam. Voordat hij dit deed, werkte hij al jarenlang in de vastgoedbranche bij een internationaal ingenieursbureau. Het kantoor begon met twee personen en is in de loop der jaren uitgegroeid tot een van de toonaangevende makelaarskantoren in Zeeland.

Bert Bimmel heeft een bouwkundige achtergrond, wat erg belangrijk is in dit vak. Ook de medewerkers van ons kantoor volgen regelmatig cursussen en trainingen om op de hoogte te blijven van nieuwe ontwikkelingen, hun kennis uit te breiden en vaardigheden te ontwikkelen. Twee van onze kantoormedewerkers zijn volledig gecertificeerde NVM-makelaars. Certificering betekent onder andere dat de makelaar voortdurend geschoold blijft op het gebied van makelaardij en het praktijkdiploma makelaar-taxateur heeft behaald. Bovendien zijn ze verplicht om elk jaar bijscholing te volgen.

Over Bert Bimmel Makelaardij
Reviews Bert Bimmel Makelaardij

Elmore Jamesstraat 5, Middelburg

€ 409.000 k.k. - Verkocht

Helaas, deze woning is verkocht!

Net te laat, deze woning is al verkocht. Laat een zoekopdracht bij ons achter zodat wij u direct kunnen helpen wanneer er nieuw aanbod beschikbaar komt.